brand logo
  • Nemovitosti
  • Kontakt
  • Přidat nemovitost
  • Nemovitosti
  • Kontakt
Přidat nemovitost

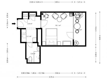
Prodej světlého bytu 1 + KK / T, 44 m2

5. května, 14000, Praha 4, Praha

6 600 000 Kč

+ anuita neuvedeno
Elite Garden Resedence.

Exkluzivní nabídka prodeje světlého bytu 1 + KK / B, 44 m2 , v centru města s výrazným investičním potenciálem.

Byt - 37 m2 OP + 7 m2 terasa s příznivou orientací - J / Z, se nachází v 5. posledním patře cihlového domu v docházkové vzdálenosti - tři minuty, od stanice metra Vyšehrad.

Byt je v pečlivě udržovaném stavu, ve správě výborně fungujícího BD.

Atraktivní lokalita ve které se byt nachází je společně s výbornou dopravní dostupností a s kompletní občanskou vybaveností ideální zejména jako investice ale i jako startovací bydlení.

Aktuálně je byt pronajatý spolehlivé, platící nájemnici se kterou je možné pokračovat ve stávajícím nájemním vztahu se zajímavým měsíčním výnosem.

Kompletní informace v kanceláři.


PENB v přípravě, prozatím uvádíme dle zákona třídu G.

Podrobné informace.

  • Cena: 6 600 000 Kč
  • Číslo zakázky:REALITYMIX-N00389
  • Dispozice bytu:1+kk
  • Podlaží v domě:5
  • Počet podlaží v domě:5
  • Celková podlahová plocha:44 m2
  • Druh objektu:cihlová
  • Stav objektu:velmi dobrý
  • Vlastnictví:družstevní
  • Sklep:2 m2
  • Umístění objektu:centrum obce
  • Doprava:vlak; dálnice; silnice; MHD; autobus
  • Elektřina:Elektro - 230 V
  • Voda:Vodovod
  • Telekomunikace:Telefon; Internet
  • Topení:Ústřední - dálkové
  • Energetická náročnost budovy:G - Mimořádně nehospodárná
  • Energetický ukazatel
    podle vyhlášky:
    č. 264/2020 Sb.
  • Plocha terasy:7 m2
gallery image
gallery image
gallery image
gallery image

Kontaktujte makléře nemovitosti.

Jiří Švára

+420 776 804 433
info@svarareality.cz

Potřebujete poradit nebo se na něco zeptat?

footer logo

Další služby.

  • iRest.cz
  • Web realitní kanceláře
  • Web Makléře
  • Web nemovitosti

 

  • RMIX MLS
  • Realitní balíček
  • RealityMIX.cz
  • Dalten.cz

O RealityMIXu.

  • O RealityMIX.cz
  • Cookies
  • Ochrana osobních údajů

© 1999—2026 DALTEN media s.r.o
Provozovatelem serveru je DALTEN media s.r.o., se sídlem Na Harfě 916/9a, Vysočany, 190 00 Praha 9.
IČ: 27135306, zapsaná v obchodním rejstříku vedeném Městským soudem v Praze, oddíl C, vložka 98915.