brand logo
  • Nemovitosti
  • Kontakt
  • Přidat nemovitost
  • Nemovitosti
  • Kontakt
Přidat nemovitost

Prodej byt 4+kk Družstevní, nízkoenergetické bydlení v Kralupech Nad Vltavou

Nádražní, 27801, Kralupy nad Vltavou

2 590 000 Kč

+ anuita neuvedeno
Cena za převod 2.590.000,- Kč, zbývající anuita 5 724.000, - Kč, celková cena 8 314.000, - Kč
Elite Garden Resedence.

Bydlení u řeky, kde si zamilujete každý den.

Prodej světlého bytu 4+kk s balkonem, parkovacím stáním v Rezidenci u Vltavy

Hledáte domov, který vám nabídne klid, prostor, světlo a kousek přírody na dosah ruky, ale zároveň nechcete být daleko od Prahy?
Tento byt je vhodný pro pohodlné rodinné bydlení, plocha bytu 80,1 m s příjemným balkonem 7,8 m a vlastním parkovacím stáním.

Byt bude v k nastěhování v září 2026

V Rezidenci u Vltavy vzniká v prostředí, kde se klid setkává s pohodlím. Ráno si můžete zaběhat podél řeky, odpoledne posedět v parku a o víkendu vyrazit na výlet. Přesto jste stále jen 30 minut vlakem od centra Prahy.

Co vám Rezidence u Vltavy nabídne?
- mateřskou školku přímo v areálu ideální pro mladé rodiny
- sportovní hřiště a útulné náměstíčko s obchody
- park u Vltavy jako stvořený pro relax, sport i romantické procházky

Družstevní bydlení je chytrá cesta k vlastnímu domovu:

Nemusíte řešit hypotéku. Stačí uhradit převodní částku a zbytek splácet postupně. Nízký vstupní vklad, možnost mimořádných splátek, jednoduchý převod podílu.
Po 3 letech lze doplatit a převést byt do vlastnictví.

Finanční podmínky:
- poplatek za převod - 12.100 Kč vč. DPH
- cena za převod - 2.590.000 Kč
- zůstatková anuita - 5.724.000,- Kč
- celková cena - 8.314.000,- Kč
- měsíční splátka anuity po převzetí bytu - 27 980,-Kč

Do 31.května 2026 lze snížit anuitu mimořádným vkladem bez poplatku.

V ceně jsou zahrnuty veškeré právní služby včetně advokátní úschovy. Cena zahrnuje klientské změny ve výši 210 tisíc korun - změna vany na sprchový kout, posun pozice dveří, vypínačů, příprava na napojení pračky v komoře, vinylová podlaha na chodbě a v obývací částí.

Ozvěte se nám, rádi vám osobně vysvětlíme detaily a pomůžeme vám zjistit, zda je to ideální volba právě pro vás.

Podrobné informace.

  • Cena: 2 590 000 Kč
  • Poznámka:Cena za převod 2.590.000,- Kč, zbývající anuita 5 724.000, - Kč, celková cena 8 314.000, - Kč
  • Číslo zakázky:REALITYMIX-6
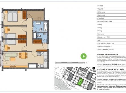
  • Dispozice bytu:4+kk
  • Podlaží v domě:5
  • Počet podlaží v domě:7
  • Celková podlahová plocha:80 m2
  • Druh objektu:cihlová
  • Stav objektu:novostavba
  • Vlastnictví:družstevní
  • Balkón:8 m2
  • Umístění objektu:centrum obce
  • Doprava:vlak; dálnice; silnice; MHD; autobus
  • Topení:Ústřední - dálkové
  • Energetická náročnost budovy:B - Velmi úsporná
  • Plocha balkónu:8 m2
gallery image
gallery image
gallery image
gallery image
501_koupelna_2.jpg

Kontaktujte makléře nemovitosti.

Vladislav Potočník

+420 603488091
+420 775040697
info@realitniservis.com

Potřebujete poradit nebo se na něco zeptat?

footer logo

Další služby.

  • iRest.cz
  • Web realitní kanceláře
  • Web Makléře
  • Web nemovitosti

 

  • RMIX MLS
  • Realitní balíček
  • RealityMIX.cz
  • Dalten.cz

O RealityMIXu.

  • O RealityMIX.cz
  • Cookies
  • Ochrana osobních údajů

© 1999—2026 DALTEN media s.r.o
Provozovatelem serveru je DALTEN media s.r.o., se sídlem Na Harfě 916/9a, Vysočany, 190 00 Praha 9.
IČ: 27135306, zapsaná v obchodním rejstříku vedeném Městským soudem v Praze, oddíl C, vložka 98915.