brand logo
  • Nemovitosti
  • Kontakt
  • Přidat nemovitost
  • Nemovitosti
  • Kontakt
Přidat nemovitost

Prodej bytu 3+1 s balkonem, Lahošť u Teplic – klidná lokalita

Lahošť

2 400 000 Kč

+ anuita neuvedeno
Včetně provize a právních služeb
Elite Garden Resedence.

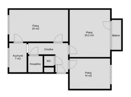
K prodeji nabízíme byt o dispozici 3+1 s balkonem a celkové výměře 61 m², který se nachází v přízemí bytového domu v klidné části obce Lahošť u Teplic, ulice Švermova. Byt má příjemnou a praktickou dispozici – tři samostatné pokoje, kuchyni, koupelnu, samostatné WC a chodbu. Z jednoho z pokojů je vstup na balkon orientovaný na jihovýchod, takže si můžete užívat příjemné slunečné světlo. Nemovitost je v původním stavu, což dává novému majiteli skvělou možnost upravit si bydlení přesně podle svých představ. Ohřev vody je zajištěn elektrickým bojlerem a vytápění plynovým kotlem.Byt je v družstevním vlastnictví a nachází se v opravdu klidné lokalitě s dobrou dostupností do Teplic. V okolí je dostatek zeleně i základní občanská vybavenost. Pokud Vás tato nabídka zaujala, ráda Vám sdělím více informací nebo se s Vámi domluvím na prohlídce.

Podrobné informace.

  • Cena: 2 400 000 Kč
  • Poznámka:Včetně provize a právních služeb
  • Číslo zakázky:REALITYMIX-941
  • Dispozice bytu:3+1
  • Podlaží v domě:1
  • Počet podlaží v domě:3
  • Celková podlahová plocha:61 m2
  • Druh objektu:cihlová
  • Stav objektu:velmi dobrý
  • Vlastnictví:družstevní
  • Umístění objektu:klidná část obce
  • Elektřina:Elektro - 230 V
  • Voda:Vodovod
  • Topení:Jiné
  • Odpad:Kanalizace
gallery image
gallery image
gallery image
gallery image
Fotka 5 Fotka 6 Fotka 7 Fotka 8

Kontaktujte makléře nemovitosti.

Michaela Vojnarová

773958379
realityvojnarova@gmail.com

Potřebujete poradit nebo se na něco zeptat?

footer logo

Další služby.

  • iRest.cz
  • Web realitní kanceláře
  • Web Makléře
  • Web nemovitosti

 

  • RMIX MLS
  • Realitní balíček
  • RealityMIX.cz
  • Dalten.cz

O RealityMIXu.

  • O RealityMIX.cz
  • Cookies
  • Ochrana osobních údajů

© 1999—2026 DALTEN media s.r.o
Provozovatelem serveru je DALTEN media s.r.o., se sídlem Na Harfě 916/9a, Vysočany, 190 00 Praha 9.
IČ: 27135306, zapsaná v obchodním rejstříku vedeném Městským soudem v Praze, oddíl C, vložka 98915.