brand logo
  • Nemovitosti
  • Kontakt
  • Přidat nemovitost
  • Nemovitosti
  • Kontakt
Přidat nemovitost

Nový byt 2+kk/T, gar. stání, 64,3 m2 , DV, Praha 9 - Vysočany, ul. Pod Harfou

Pod Harfou, Praha 9, Praha

6 420 000 Kč

+ anuita neuvedeno
Včetně provize RK. Hypotéka možná.
Elite Garden Resedence.

Nabízíme k prodeji luxusní, skvěle dispozičně vyřešený a velmi světlý byt v novostavbě Harfa Park (kolaudace 2024) v Praze 9 - Vysočany, ul. Pod Harfou.
Absolutní klid, množství zeleně, nádherný výhled a výborná dostupnost MHD (12 min. chůze na |M| Vysočanská, nebo 7 minut tramvají na |M| Palmovka - zastávka 270 m od domu).
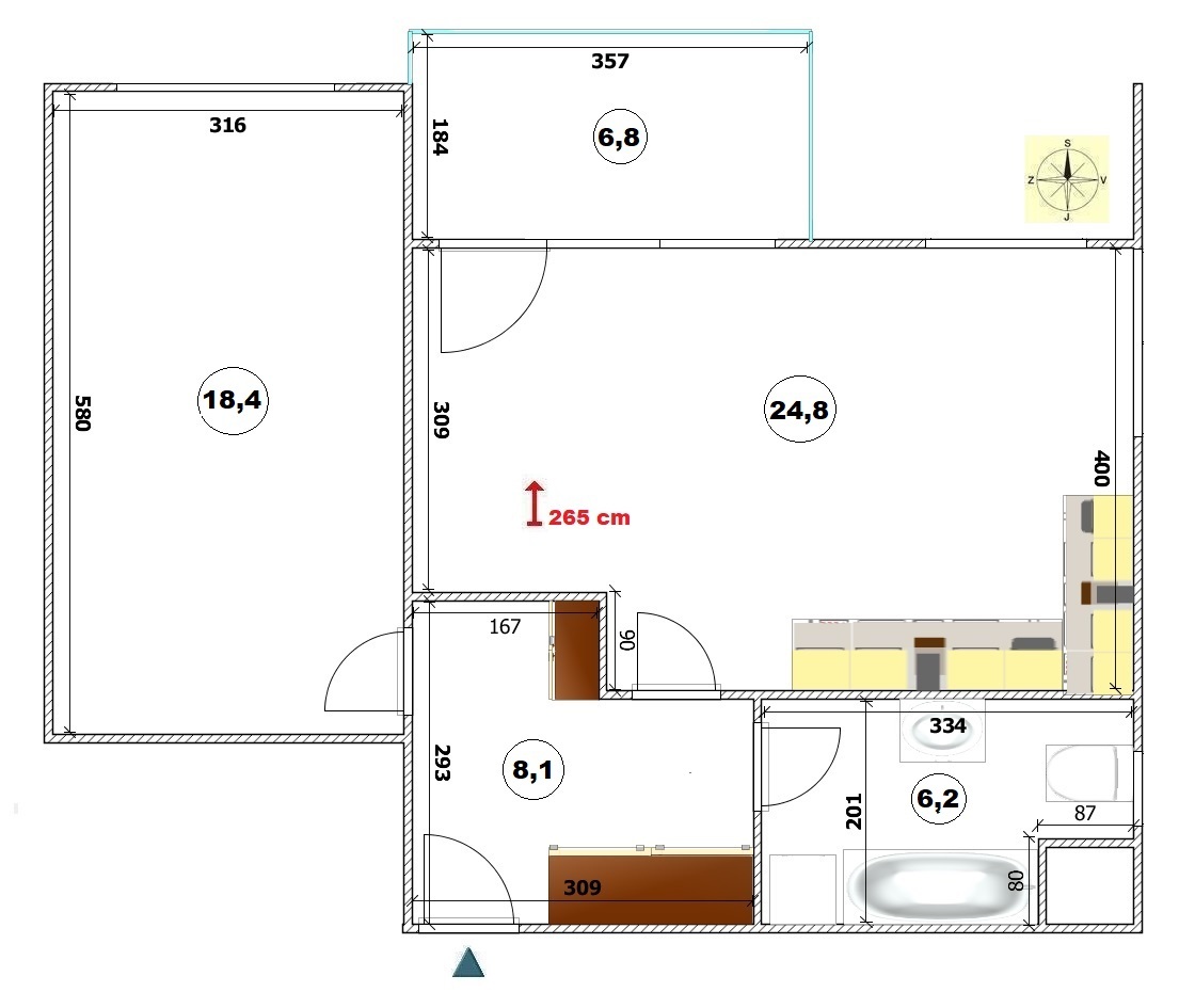
Byt 2+kk (57,5 m2 ) se zastřešenou terasou (6,8 m2 ) a garážovým stáním. 7. patro z 8 se dvěma výtahy.
Cena za převod družstevního podílu 6.420.000,-Kč + zbývající anuita ve výši 4.780.000,-Kč s 3% úrokovou sazbou bez nutnosti prokazování příjmů! Měsíční splátka ve výši 21.439,-Kč. Možnost financování prostřednictvím hypotéčního úvěru.
Převod do OV není aktuálně možný, více informací na vyžádání.
Velké vestavěné šatní skříně, věšáky a botník v předsíni. Kuchyňská linka s vestavěnou indukční deskou, horkovzdušnou troubou, myčkou a digestoří s odtahem a lednicí s mrazákem.
V obývacím pokoji 4 okna včetně francouzského se vstupem na terasu. Orientace oken do volného prostoru bez zástavby! Velmi prostorná koupelna s oknem, vanou, závěsným WC a pračkou. Na podlahách dlažba, vinyl a koberec. Vytápění dálkové - měřič vstupního tepla do bytu. Stropy vysoké 265 cm.
Společné prostory (kočárkárna a kolárna).
Internet (optický kabel – 1 Gb/s) zaveden do bytu, datové a televizní zásuvky v každé místnosti. Bezpečnostní dveře.
Krásné okolí s plnou občanskou vybaveností a sportovního vyžití. Cyklostezka (Outdoor fitness stezka Rokytka) A26 přímo u domu. Skvěle vybavená venkovní posilovna, lezecká stěna, bazén, OC Fénix, pizzerie, restaurace, …
Měsíční zálohy za služby 6.345,-Kč, včetně fondu oprav a správy 2.080,-Kč.
Skvělá investice! Byt je v současné době obsazen řádně platícím nájemcem za 23.000,-Kč + poplatky. Nájemní smlouva končí za 3 měsíce. Pokud bude mít nový majitel zájem o prodloužení, nájemce toto uvítá.
Více fotografií (34) na stránkách blanikreality pod ID: 26105.
Třída energetické náročnosti (PENB) - B - velmi úsporná.

Podrobné informace.

  • Cena: 6 420 000 Kč
  • Poznámka:Včetně provize RK. Hypotéka možná.
  • Číslo zakázky:REALITYMIX-26105
  • Dispozice bytu:2+kk
  • Podlaží v domě:8
  • Počet podlaží v domě:9
  • Celková podlahová plocha:56 m2
  • Druh objektu:cihlová
  • Stav objektu:novostavba
  • Vlastnictví:družstevní
  • Umístění objektu:klidná část obce
  • Elektřina:Elektro - 230 V; Elektro - 400 V
  • Voda:Vodovod
  • Topení:Ústřední - dálkové
  • Energetická náročnost budovy:B - Velmi úsporná
  • Energetický ukazatel
    podle vyhlášky:
    č. 264/2020 Sb.
  • Plocha terasy:6 m2
gallery image
gallery image
gallery image
gallery image
foto: 5 foto: 6 foto: 7 foto: 8 foto: 9 foto: 10 foto: 11 foto: 12 foto: 13 foto: 14 foto: 15 foto: 16 foto: 17 foto: 18 foto: 19 foto: 20 foto: 21 foto: 22 foto: 23 foto: 24 foto: 25 foto: 26 foto: 27 foto: 28 foto: 29 foto: 30 foto: 31 foto: 32

Kontaktujte makléře nemovitosti.

Bohuslav Papírník

+420739406126
papirnik@blanikreality.cz

Potřebujete poradit nebo se na něco zeptat?

footer logo

Další služby.

  • iRest.cz
  • Web realitní kanceláře
  • Web Makléře
  • Web nemovitosti

 

  • RMIX MLS
  • Realitní balíček
  • RealityMIX.cz
  • Dalten.cz

O RealityMIXu.

  • O RealityMIX.cz
  • Cookies
  • Ochrana osobních údajů

© 1999—2026 DALTEN media s.r.o
Provozovatelem serveru je DALTEN media s.r.o., se sídlem Na Harfě 916/9a, Vysočany, 190 00 Praha 9.
IČ: 27135306, zapsaná v obchodním rejstříku vedeném Městským soudem v Praze, oddíl C, vložka 98915.