brand logo
  • Nemovitosti
  • Kontakt
  • Přidat nemovitost
  • Nemovitosti
  • Kontakt
Přidat nemovitost

Prodej byt 1+kk Družstevní, nízkoenergetické bydlení v Kralupech Nad Vltavou

Havlíčkova, 27801, Kralupy nad Vltavou

2 559 000 Kč

+ anuita neuvedeno
cena za převod 2.559.000, - Kč, zbývající anuita 3 140 084 , - Kč, celková cena 5 699 084, - Kč
Elite Garden Resedence.

Bydlení u řeky, kde si zamilujete každý den.

Prodej světlého bytu 1+kk s balkonem a parkovacím stáním v Rezidenci u Vltavy

Hledáte domov, který vám nabídne klid, prostor, světlo a kousek přírody na dosah ruky, ale zároveň nechcete být daleko od Prahy? Tento byt 1+kk (upravitelný na 2+kk) o 37,6 m s příjemným balkonem 3,8 m a vlastním parkovacím stáním vám může splnit přesně to, co hledáte.
Nadstandardně již zaplacené bezpečnostní vchodové dveře a je nyní ještě možné zvolit podlahovou krytinu, která se bude dokončovat v měsíci po předání bytu.
Byt bude v k nastěhování v září 2026

Místo, kde se žije krásně

V Rezidenci u Vltavy vzniká v prostředí, kde se klid setkává s pohodlím.
Ráno si můžete zaběhat podél řeky, odpoledne posedět v parku a o víkendu vyrazit na výlet. Přesto jste stále jen 30 minut vlakem od centra Prahy.

Až bude projekt celý dokončen, získáte místo, které má duši i budoucnost.

Co vám Rezidence u Vltavy nabídne?

Mateřskou školku přímo v areálu ideální pro mladé rodiny

Sportovní hřiště a útulné náměstíčko s obchody

Park u Vltavy jako stvořený pro relax, sport i romantické procházky

Družstevní bydlení je chytrá cesta k vlastnímu domovu:

Nemusíte řešit hypotéku. Stačí uhradit převodní částku a zbytek splácet postupně.
Nízký vstupní vklad, možnost mimořádných splátek, jednoduchý převod podílu.
Po 3 letech lze doplatit a převést byt do vlastnictví.
Finanční podmínky:

Převodní poplatek: 12 100 Kč vč. DPH

Cena k převodu: 2 559 000 Kč

Zůstatková anuita: 3 140 084 Kč

Celková cena: 5 699 084 Kč

Měsíční splátka anuity po převzetí bytu: 15 350 Kč

V ceně je již zahrnuta Advokátní úschova peněz a listin pro hladký převod členských práv a povinností k bytu.

Dokončení výstavby: září 2026

Cítíte, že by to mohl být váš nový domov?

Ozvěte se nám, rádi vám osobně vysvětlíme detaily a pomůžeme vám zjistit, zda je to ideální volba právě pro vás.

Podrobné informace.

  • Cena: 2 559 000 Kč
  • Poznámka:cena za převod 2.559.000, - Kč, zbývající anuita 3 140 084 , - Kč, celková cena 5 699 084, - Kč
  • Číslo zakázky:REALITYMIX-275
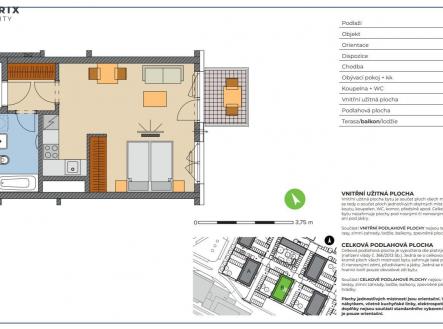
  • Dispozice bytu:1+kk
  • Podlaží v domě:5
  • Počet podlaží v domě:7
  • Celková podlahová plocha:38 m2
  • Druh objektu:cihlová
  • Stav objektu:novostavba
  • Vlastnictví:družstevní
  • Balkón:4 m2
  • Umístění objektu:centrum obce
  • Doprava:vlak; dálnice; silnice; MHD; autobus
  • Topení:Ústřední - dálkové
  • Odpad:Kanalizace
  • Energetická náročnost budovy:B - Velmi úsporná
  • Plocha balkónu:4 m2
gallery image
gallery image
gallery image
gallery image
Karta byt.jpg

Kontaktujte makléře nemovitosti.

Vladislav Potočník

+420 775040697
vladislav.potocnik@matrixreality.cz

Potřebujete poradit nebo se na něco zeptat?

footer logo

Další služby.

  • iRest.cz
  • Web realitní kanceláře
  • Web Makléře
  • Web nemovitosti

 

  • RMIX MLS
  • Realitní balíček
  • RealityMIX.cz
  • Dalten.cz

O RealityMIXu.

  • O RealityMIX.cz
  • Cookies
  • Ochrana osobních údajů

© 1999—2026 DALTEN media s.r.o
Provozovatelem serveru je DALTEN media s.r.o., se sídlem Na Harfě 916/9a, Vysočany, 190 00 Praha 9.
IČ: 27135306, zapsaná v obchodním rejstříku vedeném Městským soudem v Praze, oddíl C, vložka 98915.