brand logo
  • Nemovitosti
  • Kontakt
  • Přidat nemovitost
  • Nemovitosti
  • Kontakt
Přidat nemovitost

Byt 3+1 s lodžií, 73 m², po rekonstrukci – Praha 4 Chodov

Benkova, Praha 11, Praha

6 690 000 Kč

+ anuita neuvedeno
Elite Garden Resedence.

Ve výhradním zastoupení nabízíme k prodeji světlý a prostorný družstevní byt 3+1 se zasklenou lodžií o celkové ploše cca 73 m² (včetně lodžie a sklepa). Byt se nacházející v 10. patře revitalizovaného panelového domu s výtahem a je k nastěhování na jaře 2026.
Dům a okolí
• Dům prošel kompletní revitalizací, včetně zateplení fasády a modernizace společných prostor.
• V okolí je dostatek parkovacích míst bez modrých zón a nachází se zde parky i veškerá občanská vybavenost.
• Energetická třída B
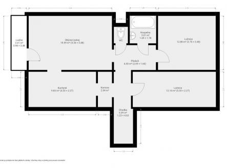
Dispozice a orientace
Byt je světlý, orientovaný na východ a západ.
• Obývací pokoj – 18,5 m²
• Kuchyň – 9,8 m²
• Ložnice – 12,8 m²
• Pokoj – 12,1 m²
• Koupelna – 3 m²
• Samostatná toaleta – 1,4 m²
• Předsíň – 4,3 m²
• Komora – 2 m²
• Chodba – 5,39 m²
• Zasklená lodžie – 3,4 m² s výhledem na Prahu
• Sklep – 1 m²
Stav a vybavení
• Zděné jádro vybudované v roce 2004, rekonstrukce interiéru proběhla v roce 2011 (mimo elektroinstalace)
• Plastová okna s elektricky ovládanými žaluziemi
• Součástí prodeje je kuchyňská linka a vestavěné úložné prostory, ostatní vybavení bude vyklizeno před předáním bytu
• Zasklená lodžie nabízí výhled na Prahu, ideální pro relaxaci
• Byt je připraven k okamžitému nastěhování, bez nutnosti dalších investic
Náklady a vlastnictví
• Byt je v družstevním vlastnictví, anuita je plně splacena
• Měsíční náklady cca 4 500 Kč služby + 2 640 Kč nájemné
• Elektřina a plyn se hradí samostatně
Lokalita
• Praha 4 – Chodov nabízí kompletní občanskou vybavenost – školy, školky, obchody, sportovní centra, zdravotní služby a spoustu zeleně
• Stanice metra C – Chodov a Háje jsou snadno dostupné a zajišťují rychlé spojení do centra
• Nedaleko je OC Westfield Chodov
Financování
• Koupi lze řešit úvěrem. S výběrem vhodného řešení vám poradí náš specialista.
Byt je ideální pro rodinu nebo pár, kteří hledají pohodlné bydlení v klidné lokalitě s výbornou dopravní dostupností.

Podrobné informace.

  • Cena: 6 690 000 Kč
  • Číslo zakázky:REALITYMIX-00020
  • Dispozice bytu:3+1
  • Podlaží v domě:10
  • Počet podlaží v domě:11
  • Celková podlahová plocha:73 m2
  • Druh objektu:panelová
  • Stav objektu:velmi dobrý
  • Vlastnictví:družstevní
  • Umístění objektu:sídliště
  • Elektřina:Elektro - 230 V
  • Voda:Vodovod
  • Plyn:Plynovod
  • Topení:Ústřední - dálkové
  • Odpad:Kanalizace
  • Energetická náročnost budovy:B - Velmi úsporná
  • Ukazatel energetické náročnosti budovy:61 kWh/m²
  • Energetický ukazatel
    podle vyhlášky:
    č. 78/2013 Sb.
gallery image
gallery image
gallery image
gallery image
foto: 5 foto: 6 foto: 7 foto: 8 foto: 9 foto: 10 foto: 11 foto: 12 foto: 13 foto: 14 foto: 15

Kontaktujte makléře nemovitosti.

Yveta Hrušková

+420775358032
info@parexreality.cz

Potřebujete poradit nebo se na něco zeptat?

footer logo

Další služby.

  • iRest.cz
  • Web realitní kanceláře
  • Web Makléře
  • Web nemovitosti

 

  • RMIX MLS
  • Realitní balíček
  • RealityMIX.cz
  • Dalten.cz

O RealityMIXu.

  • O RealityMIX.cz
  • Cookies
  • Ochrana osobních údajů

© 1999—2025 DALTEN media s.r.o
Provozovatelem serveru je DALTEN media s.r.o., se sídlem Na Harfě 916/9a, Vysočany, 190 00 Praha 9.
IČ: 27135306, zapsaná v obchodním rejstříku vedeném Městským soudem v Praze, oddíl C, vložka 98915.